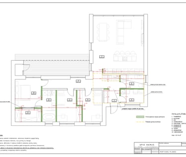
Techniniai brėžiniai
Pilną techninių brėžinių paketą sudaro:
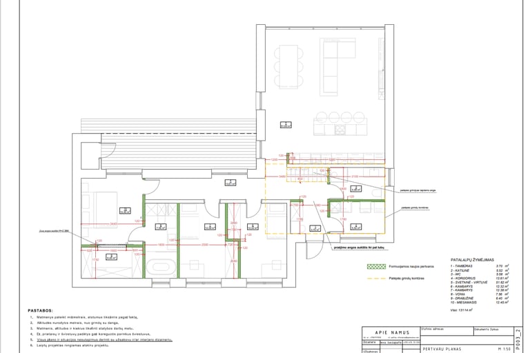
Pertvarų brėžinys
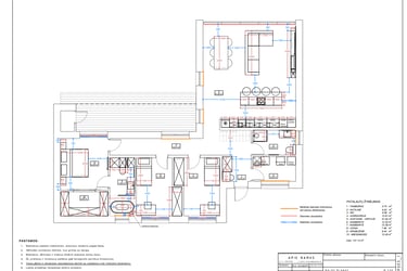
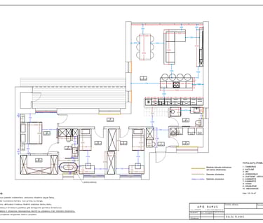
Baldų planas
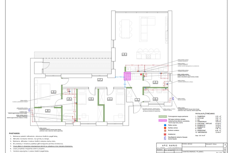
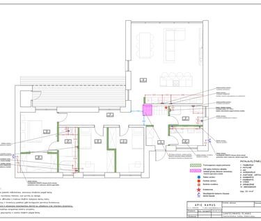
Santechnikos brėžinys
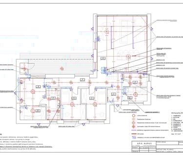
Elektros brėžinys
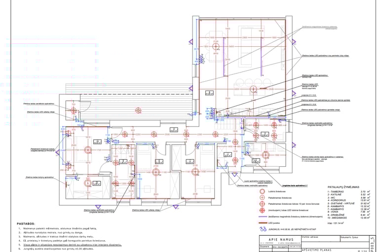
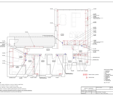
Apšvietimo brėžinys
Rekuperacijos brėžinys
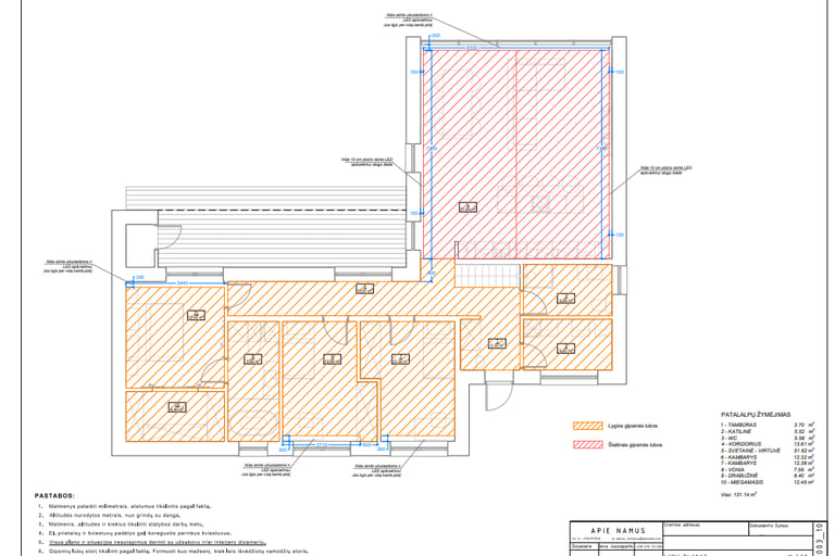
Lubų brėžinys
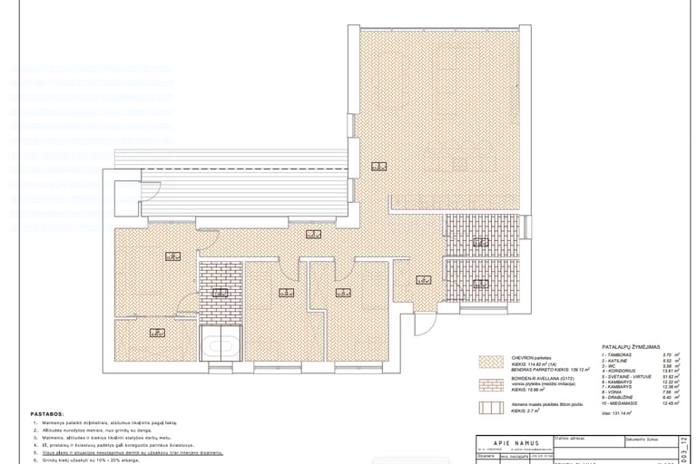
Grindų išklotinės
Sienų išklotinės
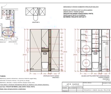
Baldų brėžiniai
Kiek ir kokių brėžinių reikia sprendžiama konsultacijos metu, kiekvienu atveju kiekis gali būti skirtingas.
Kaina priklauso nuo brėžinių kiekio ir būsto kv.m.
Brėžinių pavyzdžiai:



















